I. ĐƠN GIÁ THI CÔNG:

Bảng đơn giá sẽ tự động cập nhật dựa trên tổng diện tích quy đổi bên dưới

Phân loại Đơn giá đ/m² Tổng diện tích ví dụ Thành tiền
Nhà phố liền kề 3.900.000 0 0 VNĐ
Biệt thự, Văn phòng, Khách sạn 4.200.000 0 0 VNĐ
Công trình khác Thỏa thuận 0 Thỏa thuận
BAO GỒM:
  • A. Cung cấp cả Nhân công và Vật tư phần thô
  • B. Tiếp tục cung cấp Nhân công đến lúc hoàn thiện nhà
  • Lưu ý : vật tư hoàn thiện chiếm khoảng 40-70% giá trị phần thô

CHỌN CẤU TRÚC NHÀ

Hạng mục Diện tích (m²) Hệ số (%) Diện tích quy đổi (m²)
TỔNG DIỆN TÍCH QUY ĐỔI 0
THÀNH TIỀN NHÀ PHỐ 0 VNĐ
THÀNH TIỀN BIỆT THỰ 0 VNĐ

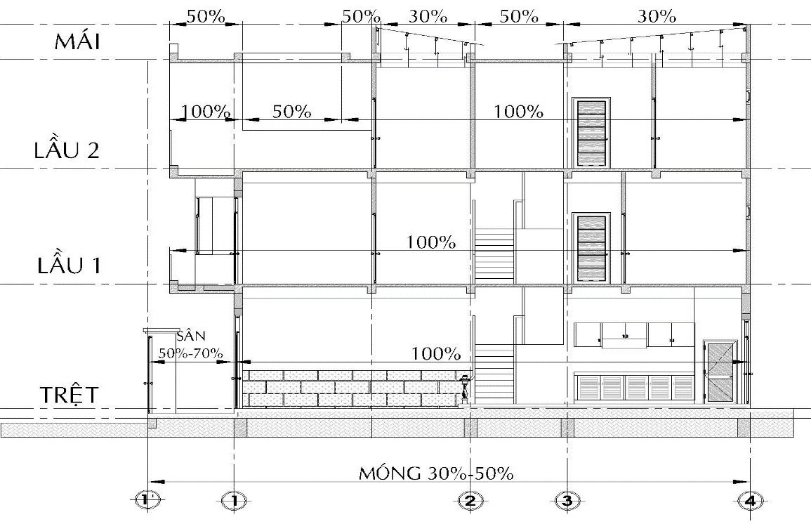
II. CÁCH TÍNH HỆ SỐ XÂY DỰNG:

  • Móng và công trình ngầm:
    • Móng đơn: 30% diện tích sàn trệt
    • Móng băng, móng cọc, móng bè: 50% (nếu có đổ bê tông nền tính thêm 65%)
  • Tầng hầm: (tùy chiều sâu với phần dưới đất)
    • Sâu đến 1.3m so với vỉa hè: 150%
    • Sâu trên 1.3m so với vỉa hè: 170%
    • Sâu trên 1.8m so với vỉa hè: 200%
  • Tầng trệt, lửng, các tầng lầu, sân thượng: 100% diện tích
  • Ô thang (giếng trời):
    • Dưới 8m²: tính toàn bộ
    • Lớn hơn 8m²: tính 50%
  • Sân thượng: 50%
  • Mái:
    • Mái tole: 30% (toàn bộ diện tích sàn)
    • Mái BTCT, mái ngói đổ sàn bê tông, mái ngói vì kèo sắt: 50%
    • Mái BTCT dán ngói: 75%
  • Sân trước, sân sau: 50% - 70% diện tích
Cách tính hệ số xây dựng

A. Tư vấn khái quát -

  • Tư vấn rõ các vấn đề liên quan đến quá trình xây dựng
  • Báo giá, soạn hợp đồng thi công
  • Ký hợp đồng thi công

B. Giai đoạn chuẩn bị thi công -

  • Treo biển báo công trình, thông báo với chính quyền địa phương
  • Chụp hình hiện trạng và các nhà lân cận
  • Chuẩn bị mặt bằng thi công, mượn vỉa hè dựng lán tạm
  • Chuẩn bị nguồn điện, nguồn nước cho thi công

C. Giai đoạn thi công phần thô -

1. Móng, bể tự hoại, hố ga

  • Đào móng, xử lý nền, thi công cốt pha, cốt thép, đổ bê tông móng từ đầu cọc trở lên
  • Xây công trình ngầm: bể tự hoại, bể nước ngầm, hố ga

2. Cột, hầm, dầm sàn

  • Thi công cốt pha, cốt thép, đổ bê tông hệ thống đà giằng, đà kiềng, dầm, cột, sàn...

3. Đổ BT cầu thang, xây bậc gạch

  • Theo đúng bản vẽ thiết kế và tiêu chuẩn kỹ thuật

4. Xây, tô tường

  • Xây và tô đúng kỹ thuật tất cả các tường bao che, các tường ngăn phòng, hộp gen kỹ thuật bằng gạch ống

5. Hệ thống ống luồn dây điện, hộp nối

  • Lắp đặt hệ thống ống luồn âm tường, hộp đấu nối cho dây điện, dây điện thoại, internet, truyền hình

6. Hệ thống cấp thoát nước nguội

  • Thi công hệ thống cấp thoát nước nguội âm tường

7. Hệ mái (không bao gồm ngói lợp)

  • Đổ bê tông mái, thi công kèo thép, lợp mái

D. Giai đoạn hoàn thiện công trình -

  • Ốp lát gạch nền và tường các tầng và nhà vệ sinh
  • Ốp gạch/đá trang trí (không bao gồm đá granite/marble)
  • Sơn nước: trét matit, sơn lót, sơn hoàn thiện
  • Lắp đặt thiết bị vệ sinh: lavabo, bồn cầu, phụ kiện
  • Lắp đặt hệ thống điện chiếu sáng, ổ cắm, công tắc, camera...
  • Vệ sinh và bàn giao công trình

Lưu ý: Giai đoạn hoàn thiện công ty chỉ cung cấp nhân công.

E. Bảo hành công trình -

  • Thời gian bảo hành: 12 tháng kể từ ngày bàn giao
  • Nếu có lỗi kỹ thuật, công ty sẽ khảo sát và xử lý trong vòng 48h

Cam kết sử dụng vật tư chính hãng và đúng thỏa thuận trong hợp đồng. Tuyệt đối không đưa vật tư giả, vật tư kém chất lượng vào thi công công trình.

  1. Sắt: VIỆT – NHẬT hoặc POMINA
  2. Xi Măng: INSEE hoặc Hà Tiên
    (Xi măng xây tô M75 – Tương đương 1 bao xi măng = 10 thùng cát)
  3. Gạch TUYNEL AN GIANG: kích thước chuẩn 8x8x18
  4. Đá: 10mm x 20mm cho công tác bê tông và đá 40mm x 60mm cho công tác làm le móng
  5. Cát Tân Châu: Cát hạt lớn đổ bê tông – Cát mi xây tô
  6. BÊ TÔNG: Sử dụng bê tông thương phẩm hoặc bê tông trộn tại chỗ tùy theo điều kiện thi công
    (Mác bê tông theo thiết kế: Mác 250 với tỉ lệ: 1xi – 4cát – 6đá, dùng sơn 18l)
  7. Ống nước: BÌNH MINH
    (Quy cách theo tiêu chuẩn nhà sản xuất, chịu áp lực >PN5)
    (Đường kính ống theo bản vẽ thiết kế, bao gồm ống nước lạnh, co, T, van khóa)
  8. Ống cứng luồn dây điện âm trong sàn BTCT: VEGA
  9. Ống ruột gà luồn dây điện trong tường, đâm: SINO
  10. Hóa chất chống thấm: SIKA (loại 1)
  11. Ngói: THÁI LAN, ĐỒNG TÂM
  12. Thiết bị phục vụ công tác thi công: Dàn giáo – Coppha sắt, máy trộn bê tông, gia công sắt thép, cây chống các loại